Zanfretta Gelateria

Strategy, Branding, Design

Florence, Italy
Fall, 2025

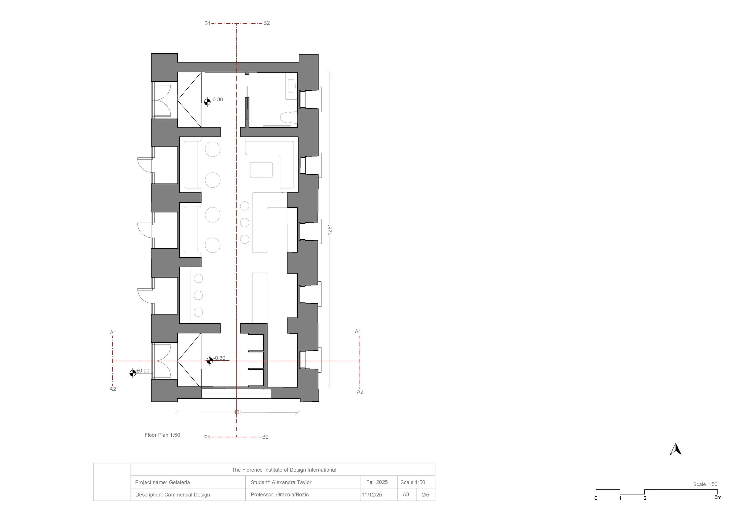
This academic studio project involved developing a gelateria concept in Santa Croce, Florence. The scope included creating a client brief, identifying opportunity, developing branding, material strategy, circulation and flow, case study research, mood and reference boards, and producing interior designs at 1:50 scale using AutoCAD, SketchUp, and Photoshop.

Project Details

 
    • Identified a gap in Santa Croce’s nighttime rhythm, where restaurants and bars thrive but gelaterias close early and feel transactional

    • Developed a hybrid gelateria and amaro bar to bridge dessert and nightlife

    • Reimagined gelato as an evening experience, supporting both quick service and lingering

    • Used zoning and circulation to reflect different rhythms of use, sequencing arrival, service, and exit

    • Developed a brand rooted in collision between worlds and a fascination with the unknown

    • Named Zanfretta after Piet Fortuna Zanfretta, referencing a claimed extraterrestrial encounter

    • Positioned the space as an interior world, separated from the street and transporting guests elsewhere

    • Aligned branding, spatial intent, and atmosphere to create a cohesive, immersive identity

    • Established a mood of transported, charged wonder

    • Drew inspiration from 1980s interiors and retro futurism, emphasizing atmosphere and immersion

    • Closed off street-facing windows and lowered ceiling heights to create a controlled interior environment

    • Used vestibules, compression, and release to slow entry and heighten transition

    • Selected matte and reflective materials and deep color to build depth and spatial intensity

    • Designed lighting to control focus and atmosphere, reinforcing nighttime use

Next
Next

Crocus Hill Condo